1600 KVA 3 fázisú transzformátor földelés-12/0,48 KV|USA 2025
Teljesítmény: 1600 kVA
Feszültség: 12D-0,48Y/0,277 kV
Jellemző: könyök típusú villámhárítókkal
A Jiangshan Scotech Electrical Co., Ltd. az egyik legmegbízhatóbb gyártó és szállító az 1600 kva-os 3 fázisú transzformátor földelésében-12/0,48 kv|USA 2025 Kínában. Kérjük, bátran vásároljon költséghatékony termékeket itt, és kérjen diagramokat gyárunktól. További részletekért lépjen kapcsolatba velünk.

A virágzó üzleti negyedek számára a The Three{0}}Phase Pad-Mounted Transformer.
01 Általános
1.1 Projekt leírás
Az 1600 kVA-s háromfázisú pad-szerelt transzformátort 2025-ben szállították az USA-ba. A transzformátor névleges teljesítménye 1600 kVA KNAN hűtéssel. A nagyfeszültség 12D kV ±2*2,5%-os megcsapolási tartománnyal (NLTC), a kisfeszültség 0,48Y/0,277 kV, Dyn1 vektorcsoportot alkottak.
Ez a háromfázisú transzformátorföldelés egy nagy-teljesítményű, környezetkímélő elektromos elosztási megoldás, amelyet megbízható föld alatti---feszültség-átalakításra terveztek kereskedelmi, ipari és lakossági alkalmazásokban.
FR3® természetes észter dielektromos folyadékkal készült, kiváló tűzbiztonságot (magas tűzpont), fokozott környezeti fenntarthatóságot (biológiailag könnyen lebomló), valamint meghosszabbított a berendezés élettartamát a kiváló nedvességkezelés és a szigetelés megőrzése révén. Az egység megfelel az Egyesült Államok Energiaügyi Minisztériuma (DOE) szigorú energiahatékonysági szabványainak, így jelentős csökkenést biztosít a mag- és tekercsveszteségben az alacsonyabb teljes birtoklási költség és a kisebb szénlábnyom mellett.
A rendszer fokozott védelme és tartóssága érdekében a transzformátor beépített könyök{0}} típusú túlfeszültség-levezetőkkel (villámlevezetőkkel) van felszerelve, amelyek megbízható túlfeszültségvédelmet biztosítanak közvetlenül az elsődleges csatlakozásoknál, kompakt, helytakarékos{1}} kivitelben. A robusztus, -szabotázsálló, fehér porszórt-burkolatú (RAL 9003) burkolatban található transzformátor tiszta, vizuálisan semleges megjelenést kínál, amely zökkenőmentesen illeszkedik a városi és parkosított környezetbe, miközben kiváló korrózióállóságot és hosszan tartó -esztétikai megjelenést biztosít.
A fejlett dielektromos technológiát, a kötelező energiahatékonyságot, az integrált védelmet és a tartós, alacsony profilú{0}}konstrukciót ötvöző transzformátor biztonságos, hatékony és megbízható hosszú távú{1}}működésre készült.
1.2 Műszaki specifikáció
1600 kVA 3 fázisú transzformátor földelési típusa és adatlapja
|
Kézbesítve
Egyesült Államok
|
|
Év
2025
|
|
Írja be
Padlóra szerelt transzformátor
|
|
Standard
IEEE Std C57.12.34-2022
|
|
Névleges teljesítmény
1600 kVA
|
|
Frekvencia
60Hz
|
|
Fázis
3
|
|
Takarmány
Hurok
|
|
Elülső
Halott
|
|
Hűtés típusa
KNAN
|
|
Elsődleges feszültség
12D kV
|
|
Másodlagos feszültség
0,48Y/0,277 kV
|
|
Tekercselő anyag
Alumínium
|
|
Vektor csoport
Dyn1
|
|
Impedancia
5.75%
|
|
Hatékonyság
99.43%
|
|
Koppintson a Váltó elemre
NLTC
|
|
Érintő tartomány
±2*2.5%
|
|
Nincs terhelési veszteség
1,67 kW
|
|
Terhelésvesztéskor
10,9 kW
|
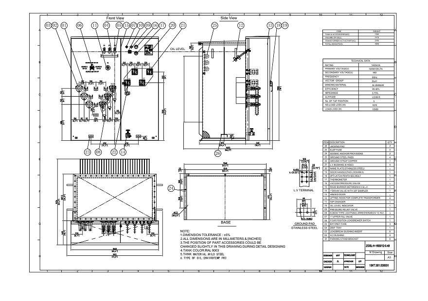
1.3 Rajzok
1600 kVA alátétre szerelt transzformátor diagram rajz és méret.
![]() |
![]() |
02 Gyártás
2.1 Mag

A SCOTECH 3 fázisú transzformátor földelése kiváló -minőségű, szemcse-szemcseorientált szilíciumacél magokkal rendelkezik, amelyek ultra-alacsony magveszteséget és minimális mágneses fluxusszivárgást biztosítanak. A fejlett szigetelőbevonattal ellátott, precíziós-vágású laminálások csökkentik az örvényáram- és hiszterézisveszteségeket, kivételes energiahatékonyságot és stabil feszültségkimenetet biztosítva még ingadozó terhelési körülmények között is. A kompakt, robusztus magkialakítás nemcsak maximalizálja a térkihasználást a házon belül, hanem növeli a mechanikai szilárdságot is, hogy ellenálljon a kültéri környezeti igénybevételeknek, megbízható teljesítményt nyújtva a lakossági, kereskedelmi és ipari áramelosztó hálózatokhoz.
2.2 Magas persely
Pad{0}}szerelt transzformátor nagyfeszültségű-perselyei (15/25/35kV 200A) megfelelnek az ANSI/IEEE 386 specifikációinak, és kulcsfontosságú szétválasztható csatlakozókként szolgálnak a terhelésmegszakító könyökökhöz. Az egyszerű helyszíni összeszereléshez és karbantartáshoz tervezték, robusztus szigetelést, biztonságos nyomaték alapú-illesztést és szabványos földelési gyakorlattal való kompatibilitást biztosítanak, így biztosítva a stabil energiaátvitelt a kültéri elosztóhálózatokban.

2.3 Olajszint mérő

A pad -szerelt transzformátor UHZ-01 olajszintmérője egy biztonságos, megbízható és könnyen leolvasható--eszköz kis/közepes kapacitású-olajba merülő{10}}egységekhez, amelyek -40-80 fokon működnek, és a páratartalom kisebb vagy egyenlő, mint 0 mm és 90% vagy egyenlő magasság; úszóval hajtott mágneses jelzőt (az olajtartályból lezárva) használ a valós idejű olajszint-változások megjelenítésére, hosszabb élettartammal, mint az üveges mérőeszközök, és merőleges szerelést igényel éles rázkódás vagy erős mágneses interferencia nélkül.
2.4 Hőmérő
A pad -szerelt transzformátor BWS-70 hőmérője egy érzékeny, megbízható eszköz, rozsdamentes acél házzal (hosszú élettartam, elegáns megjelenés), amely a tartály olajhőmérsékletét jelzi; az izzót a pontosság érdekében 100 mm-nél vagy annál nagyobb mélységben kell behelyezni a közegbe, ütközés/hajlítás elleni védelmet igényel, és a pontos leolvasás érdekében évente ellenőrizni kell.

2.5 Nyomáscsökkentő szelep

A betétre szerelt transzformátor YSF sorozatú nyomáscsökkentő szelepe megvédi a tartályt a túlnyomástól: automatikusan-nyílik 10 psi nyomáson (testreszabható), hogy kiengedje a gázt, amíg a biztonságos nyomás helyreáll, lehetővé teszi a kézi nyomáscsökkentést a karikán keresztül, 0-80 fokban működik és<95% humidity, requires sealant for mounting, and avoids corrosion-prone environments.
2.6 Vákuumnyomásmérő
A pad{0}}szerelt transzformátor YZ-70 vákuumnyomásmérője a hőmérséklet-függő nyomásváltozások tükrözésével figyeli a működést, választható tartományokat (-0,04-0,04/-0,08-0,08 MPa), ±2,5%-os pontosságot és M27×2 állítható csavaros rögzítést kínál; -40-80 fokon / 80%-os vagy annál kisebb páratartalom mellett működik, merőlegesen kell beszerelni, és 6 havonta ellenőrizni kell a megbízható teljesítmény érdekében.

2.7 Könyökrögzítő
A betétre szerelt transzformátor 15/25kV-os 200A osztályú könyöklevezetője egy fém-oxid varisztor modult integrál egy peroxiddal -keményített gumikönyökbe (IEEE 386-kompatibilis), így túlfeszültségvédelmet biztosít a földalatti rendszerek számára (transzformátorok, boltozatok stb.). Árnyékolt holtfronti védelmet kínál, olyan specifikációkkal, mint a 2,55-17,5 kV MCCV és 7,7-53,6 kV maximális kisülési feszültség (10 kA-nál), valamint 223-235 mm-es dimenziójú kialakítások az egyszerű telepítés érdekében.
03 Tesztelés
Egy 1600 kVA-s 3 fázisú transzformátor földelése (modell: 12D-0,48Y/0,277 kV, sorozatszám: 250904) 2025. október 22-én rutinvizsgálaton esett át az IEEE szabványoknak megfelelően (C57.12.00{17,}}20{1). C57.12.34-2022, C57.12.90-2021). A tesztek között szerepelt tekercsellenállás mérés (max. kiegyensúlyozatlansági arány 7,03%), feszültségviszony vizsgálat (eltérés -0,07%~-0,05%), fázis-reláció teszt (Dyn1 vektorcsoport), üresjárati veszteség és árammérés (1,432 kW, 0,23%), terhelési veszteség, impedancia feszültség és hatásfok teszt (10,6%, 0,9%, 5 9%, 9 %). feszültségteszt (HV 34kV/60s, LV 10kV/60s), indukált feszültségállósági vizsgálat (24kV, 150Hz, 48s), szigetelési ellenállásmérés (2,51-3,97GΩ) és nyomásszivárgás teszt (20kPa, 24h). Minden elem megfelelt az elfogadási kritériumoknak, feszültségösszeomlás vagy szivárgás nem figyelhető meg.


04 Csomagolás és szállítás


05 Webhely és összefoglaló
SCOTECH pad{0}}szerelt transzformátorok: kompakt kialakítás, nagy teherbírású-teljesítmény, semmiféle biztonság. Minden áramelosztási forgatókönyvhöz ideális egységeink ötvözik az innovációt és a tartósságot, hogy működése zökkenőmentesen működjön nap mint nap. Válassza a SCOTECH-ot{4}}megbízható partnere az intelligensebb, hatékonyabb energiamegoldásokért.
- Tanúsított energiahatékonyság a teljes birtoklási költség csökkentése érdekében.
- Előremutató-Környezet- és tűzbiztonság az FR3 folyadékkal.
- Robusztus rendszervédelem integrált levezetőkkel a hálózat rugalmassága érdekében.
- Tartós és közösségbarát{0}}kialakítás olyan felülettel, amely zökkenőmentesen illeszkedik bármilyen környezetbe.
Elkötelezettek vagyunk amellett, hogy olyan elektromos berendezéseket biztosítsunk, amelyek nemcsak megfelelnek a szabványoknak, de felülmúlják az elvárásokat. Ha részletes specifikációkat, testreszabási lehetőségeket szeretne felfedezni, vagy meg szeretné beszélni konkrét projektigényeit, kérjük, lépjen kapcsolatba értékesítési és mérnöki csapatunkkal még ma.

Népszerű tags: 3 fázisú transzformátor földelés, gyártó, szállító, ár, költség
You Might Also Like
2500 kVA pad-szerelt transzformátor-13,2/0,48 kV|Kan...
2500 kVA Pad Mount Transformer-12,47/0,48 kV|USA 2025
3000 kVA transzformátor-25/0,6 kV|Kanada 2025
2500 kVA transzformátorok Pad-12,47/0,48 kV|USA 2025
112,5 kVA Dead Front Transformers-22,86/0,208 kV|USA...
750 KVA alátétre szerelt transzformátor hurok előtol...
A szálláslekérdezés elküldése











